This blog post is a little different as it doesn’t involve a before and after reveal of a room, but I’ve gotten several questions about the process of doing an addition so I wanted to address it. I’m going to spill all the beans — including costs where I can — so that if you’re considering an addition you have some idea of what to expect.

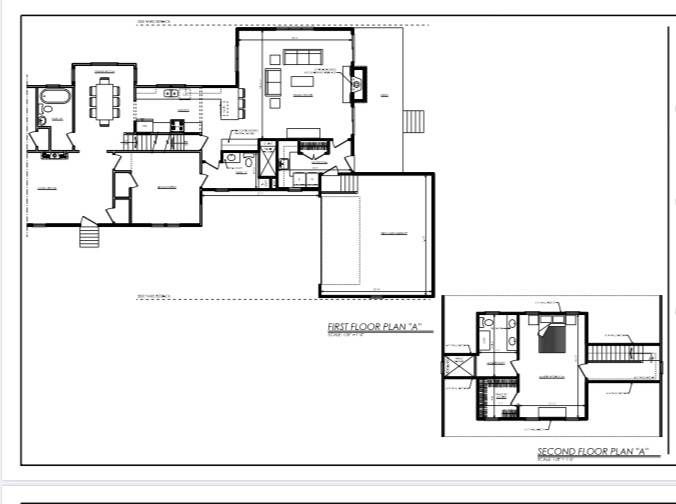
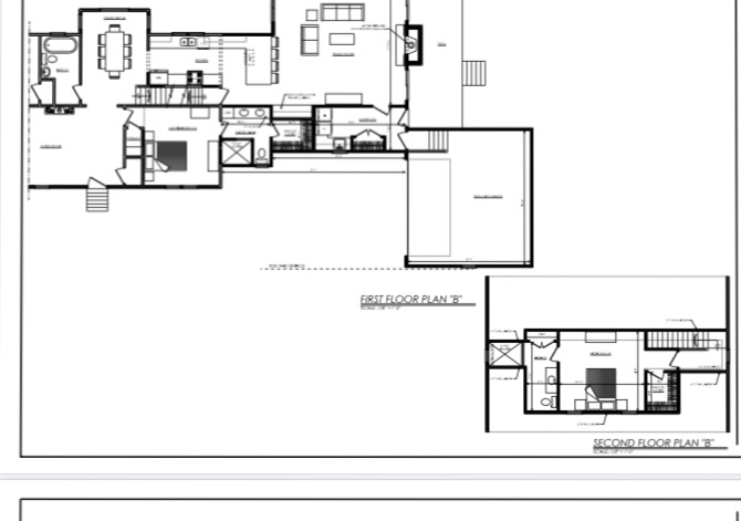
We knew before we even closed on this home that it would need more square footage to work for us (and a second bathroom — real marriage saver). The house had a walk-up attic which we hoped could be converted to a second floor and plenty of space to add on in the back.

Our home was a little over 1,000 sq ft with two bedrooms and one bathroom when we purchased it. We now have three bedrooms and three bathrooms with about 2,300 sq ft.
Hiring an Architect
We worked with a local architect who started the process for us in March with a proposal for architectural services, and we received final constructions drawings in July. She was the fourth architect we had spoken with, and I think we were already exhausted by the process and ready to pull the trigger. While she didn’t wow us in any way, her costs seemed reasonable in comparison (and she showed up on time for the appointment, ha!). Although she did call me “Tish” in her proposal so that probably should have been a red flag…
Here’s how the process worked with the architect:
She worked in phases, beginning with PreDesign where she measured and digitally photographed the house in order to prepare existing conditions drawings. She also verified zoning and building restrictions. In the Preliminary Design phase, she prepared a few concepts for the project and then we worked together to combine them into a single design direction. Once we reached a Final Preliminary Design, it was up to us to have sub contractors put together preliminary pricing for the project. Once everything was confirmed with the budget and final revisions were made, she completed the Construction Drawings. They included all of the architectural drawings that I needed to get a building permit.
[For those of you who care… She charged us an hourly rate of $125 for Architect time and $75 for Associate time. Reimbursable expenses (structural engineering, blueprints, etc.) were in addition to architectural fees. Our original estimate was a total of $4,400. Any time we made changes of any kind it cost us more money — which I obviously hated.
There was a bit of back and forth as we worked towards a final plan. I wish I could say that I was decisive and knew what I wanted from the beginning — but that would be a lie. I’m not great at making decisions (even when I know that making changes will cost me money), and I’m a very visual person. I had such a hard time taking what was on paper and imagining it in real life. At one point my husband picked up a surveyor’s wheel and some sidewalk chalk and took me to a large parking lot to try to map things out so I could get a feel for the space.



The most difficult thing for me was not knowing how the architectural changes we made would impact the budget. We were making changes with the architect before we knew how much it would cost. Talk about SCARY! She couldn’t tell us how much anything would cost, and we couldn’t shop for contractors without at least prelim plans for them to use to give us an estimate.



Shopping for a general contractor was even more difficult than finding an architect. We tried everyone from big, professional companies who weren’t willing to let us do any part of the work ourselves (they get their big mark-up on the labor of the finish work) to guys that gave us handwritten estimates on notebook paper.
It was important to us to save money, and we thought the best way to do that was to take on the finish work ourselves. This did make finding a contractor a little more challenging because they really think that sounds like a big pain in the a** and they don’t want to deal. I can’t say that I blame them, but we persisted until we found someone who agreed to what we wanted at a price we could stomach. (Seriously, we had quotes as high as what it would cost to buy an entire house in our neighborhood!)
So after MONTHS where I stalled the project with a major case of ANALYSIS PARALYSIS (and drove my husband insane) we had plans and a contractor. Little did we know that the waiting game was only just beginning. But I’ll save that for another time.

I didn’t want to bore you with too many details, but if you have any questions at all about the process leave them in the comments and I promise to answer them.






Hey there I saw your post .And some how ended up reading your blog.. Amazing and beautiful Shared . # Enjoy Life
LikeLiked by 1 person
Thank you so much!
LikeLike