…and I love it! When we did the addition I knew that I wanted a mudroom/laundry room on the first floor. (My days of wanting to go down into a 100 year old creepy basement are long gone.) But there was one more thing I was hoping this room could be, and that’s all things dog. For not only our three dogs, but also our foster dogs.
Let’s talk about the design and how we made this small room serve three purposes.

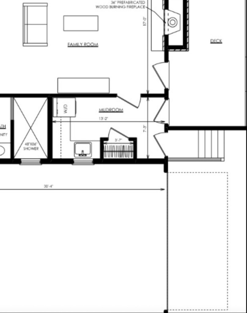
The architect originally had a U-shaped countertop with a sink in the center of the far wall, a closet on one side and the washer/dryer on the right. We wanted to have floor space for dog crates (at least two) so that didn’t work for us.

She tried stackable appliances with less counter space and a closet right inside the garage door. This was better, but not great.

Then I realized what I really wanted all along. A dog wash station! Screw a utility sink…I wanted something better. So I had her put the washer/dryer on the east wall with a dog wash under the west window and a closet right beside it, and voila! Perfect set up.
The reason this room works so well for our purposes is that I can bring a new foster dog in through the garage, give it a bath and let it out in the back all without it ever coming into the rest of the house. For everyone’s safety we quarantine them for several days, which also allows our dogs to smell them without seeing them and introductions go much more smoothly.


Dog Wash
Once the design was in place and the contractors did the framing and drywall we had the plumber install the dog wash parts. I ended up buying a shower pan made for a mobile home in order to get the size we needed. It has molded fiberglass sides that come up higher than a traditional shower pan would.

I found a wall-mount faucet with a side sprayer at Home Depot. We used the large-format subway tiles that we had leftover from the master bath shower on the walls above the shower pan.


Flooring
We used the same tile in here that we used in our master bathroom. The grey porcelain tiles are 12 x 24″ and don’t show too much dirt. This is a MUD room after all.


Paint
Because I knew there would be a lot of white in this room (appliances, closet doors, wall tile and shower pan), I decided to go dark on the walls. I chose Sherwin-Williams Refuge, and it has become one of my favorite wall colors in the house.

Countertop
The countertop was an old butcherblock counter that someone ripped out of their kitchen and sold to me for cheap on Facebook marketplace. I sanded it down and removed the many many layers of finish. Because I was using it in the laundry room and it doesn’t need to be food-safe, I finished it as I would any other wood project. Just stain and a few layers of polyurethane.


Mounting it was the most difficult part. I wanted it to be super sturdy, but I didn’t want there to be any obstructions underneath because we needed that space for potential dog crates.

I found these SpeedBraces at Amazon and made sure that two of them would be sturdy enough to hold the counter. I mounted a cleat on the wall and this thing isn’t going anywhere!

Closet
I didn’t want to spend a lot of money on closet doors, so I purchased stock bi-fold doors at Lowe’s. Bi-fold door aren’t my favorite, so I needed to make some adjustments to these so they would work as french doors. My dad came in handy here, and is really the one who figured out how to make it work. I think they look much more expensive than a traditional bifold door.


There are magnets mounted on the header casement that hold the doors closed, and they are hinged in such a way that they swing all the way back and lie flat against the wall. Perfect for getting stuff into and out of the closet.

I designed the closet so that it would hold our tall items (brooms, mops etc.), while still having plenty of shelves for storing cleaning supplies and season items we use on the deck. Plenty of room for me to collect more crap!








